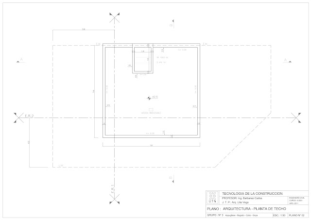
Planos, proyectos, detalles constructivos referentes a Ingeniería Civil y Arquitectura.
IMPORTANTE
Importante:
Los detalles constructivos son a modo meramente ilustrativo; los mismos no deben ser considerados como verdad absoluta ya que deberán ser validados para cada obra en particular. Las medidas y elementos existentes en los detalles de estructura deberán ser verificados por cálculo, siendo los expresados en los mismos a modo de conocimiento general del sistema constructivo.Todos los trabajos son de mi autoría. Sólo envío planos en formato .dwg a estudiantes, contactar por mail en caso de necesitar alguno.
Etiquetas
- Cubierta (11)
- Estructura (23)
- Instalaciones (15)
- Mamposteria (6)
- Planillas de cálculo (1)
- Planta (13)
- Render (4)
TRABAJOS A PEDIDO
Además de los trabajos que pueden encontrar en este blog, realizo TRABAJOS A PEDIDO:
-Proyectos de Arquitectura
-Cálculo de Estructuras
-Diseño y cálculo de instalaciones eléctricas y sanitarias
-Planos municipales
-Detalles constructivos
Para pedir un PRESUPUESTO envienme un mail a hernan_cabo@hotmail.com
Suscribirse a:
Enviar comentarios (Atom)









No hay comentarios:
Publicar un comentario